Mosquitera retráctil gran formato para grandes ventanales, terrazas, balcones, etc...

Mosquitera retráctil gran formato para grandes ventanales, terrazas, balcones, etc...

Mosquitera retráctil de gran formato para ventanales y terrazas; hasta 9 m ancho o 4 m alto. Alta durabilidad. Instalación profesional.

Ficha técnica — Mosquitera-Estor Centor S4

La Centor S4 es una pantalla retráctil de gran formato para cerrar grandes aperturas manteniendo la continuidad interior-exterior. Proporciona protección contra insectos, control de luz y privacidad, con un manejo suave con un dedo gracias a su sistema de equilibrio de carga.

Prestaciones clave

  • Gran formato: hasta 9 m de ancho o 4 m de alto (según configuración del vano).

  • Retracción total: cuando no se usa, queda oculta; visión limpia y minimalista.

  • Integración arquitectónica: opción de cajones embutidos y suelo pasante sin barreras.

  • Instalación versátil: montaje interior o exterior según proyecto.

  • Sistema dual: puede funcionar como mosquitera o estor (según tela).

  • Cambio de telas sin obra: acceso a todos los accesorios interiores sin desmontar el marco.

  • Resistencia al viento: Categoría 3.

  • Eficiencia energética: favorece la ventilación natural y reduce el uso de A/A.

  • Operativa segura y precisa: guías y mecanismos diseñados para uso intensivo.

Especificaciones técnicas

  • Materiales: aluminio extruido en perfiles y componentes de polímeros de ingeniería; tornillería inox.

  • Acabados: lacados (RAL) o anodizados, colores personalizables.

  • Tejidos:

    • Mosquitera (malla técnica antiinsectos).

    • Screen de control solar (varios factores de apertura).

    • Blackout (oscurante) para máxima privacidad.

  • Manejo: sistema de balanceo de carga para apertura/cierre con mínimo esfuerzo.

  • Integración: marco/cajón embutible y guía inferior apta para paso accesible.

Configuraciones disponibles

  • Simple: una pantalla para aperturas estándar.

  • Doble: dos pantallas que cierran al centro o con unión desplazada.

  • Combo: mosquitera + estor en el mismo sistema.

  • Esquina 90°: solución para aperturas en L sin montante intermedio.

  • Sin jamba: cobertura completa sin interrupciones visuales.

Compatibilidad y usos

Ideal para grandes ventanales, puertas correderas o plegables, porches, pérgolas, balcones y terrazas, donde se necesite protección y transparencia visual a la vez.

Alcance de suministro

Tecnología Centor (origen australiano) con suministro a medida para España, Portugal y Andorra.

Mosquitera S4 interior

Mosquitera S4 interior

_ 6,5 m de ancho, cajones vistos

mosquitera S4 CORNER

mosquitera S4 CORNER

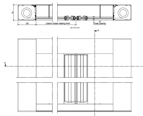
mosquitera S4 DOBLE

mosquitera S4 DOBLE

Folleto Centor S4

Folleto Centor S4

_ 8,33 Mb

Folleto - cierre lateral para ventanas correderas

Folleto - cierre lateral para ventanas correderas

_ 605,67 Kb

Folleto - suelo continuo, umbral invisible

Folleto - suelo continuo, umbral invisible

_ 826,01 Kb

Folleto - S4 Centor, mosquitera - estor

Folleto - S4 Centor, mosquitera - estor

_ 1,35 Mb

plano básico mosquitera Centor S4 doble

plano básico mosquitera Centor S4 doble

_ medidas de perfilería 81,79 Kb

Solicitar presupuesto

Solicitar presupuesto

Presupuesto sin compromiso · Asesoramiento técnico para grandes ventanales